
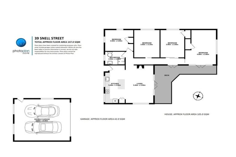
39 Snell Street, Morrinsville, 3300 is a Residential property built in 1954 with 4 bedrooms, 1 bathroom and 2 parking spaces. The property is estimated to be valued in the range of $600,000 to $650,000.
The property last sold on 21 July 2022 for $673,500. It was sold by Property Brokers (Te Aroha), and took 7 days to sell. On 1 July 2024, 39 Snell Street, Morrinsville, 3300 had a Rating Valuation with a Capital Value of $590,000, Land Value of $360,000 and Improvement Value of $230,000.
| Date | Type | Price | Agent/Agency |
|---|---|---|---|
| 29 Apr 2023 | ASKING PRICE | $649,000 | Fraser Kilgour of Lugtons Limited, (Licensed: Reaa 2008) |
| 21 Jul 2022 | SOLD | $673,500 | Evan McLennan of Property Brokers (Te Aroha) |
| 15 Jul 2022 | ASKING PRICE | $689,000 | Evan McLennan of Property Brokers (Te Aroha) |
| 11 Feb 2022 | ASKING PRICE | $719,000 | Danielle Callaghan of Harcourts Morrinsville, (Licensed: Reaa 2008) |
| 11 Dec 2017 | SOLD | $410,000 | Mark Fabish of Morrinsville Real Estate Ltd Professionals, Morri |
| 6 Dec 2017 | ASKING PRICE | $425,000 | Mark Fabish of Morrinsville Real Estate Ltd Professionals, Morri |
| 14 Jun 2013 | ASKING PRICE | $250,000 | Donna Oakes of Harcourts Morrinsville |
| 3 Apr 2005 | SOLD | $200,000 | |
| 10 Oct 2003 | SOLD | $126,000 | |
| 12 Nov 2002 | SOLD | $122,000 |
Lot 1 Deposited Plan South Auckland 2369
There are no similar properties in the area that are listed for sale or recently sold.