
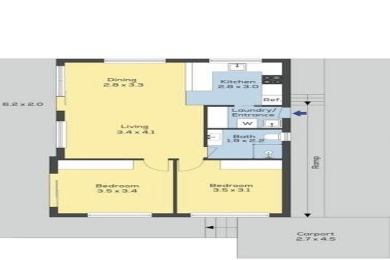
91 Stott Avenue, Birkdale, Auckland, 0626 is a Residential property built in 1973 with 5 bedrooms, 2 bathrooms and 1 parking space. The property is estimated to be valued in the range of $1,300,000 to $1,400,000.
The property last sold on 27 May 2021 for $1,410,000. It was sold by N/A. On 1 May 2024, 91 Stott Avenue, Birkdale, Auckland, 0626 had a Rating Valuation with a Capital Value of $1,325,000, Land Value of $770,000 and Improvement Value of $555,000.
| Date | Type | Price | Agent/Agency |
|---|---|---|---|
| 14 Jan 2026 | Rented | $620 | |
| 30 Oct 2025 | Rented | $600 | |
| 7 Jul 2024 | Rented | $600 | |
| 17 Feb 2023 | Rented | $650 | |
| 27 May 2021 | SOLD | $1,410,000 | |
| 12 Jul 2016 | AUCTION | Price Not Disclosed | Jo Montague of Harcourts Birkenhead |
| 9 Feb 1988 | SOLD | $114,000 | |
| 18 Feb 1987 | SOLD | $95,000 |
Lot 57 Deposited Plan 57498
There are no similar properties in the area that are listed for sale or recently sold.