
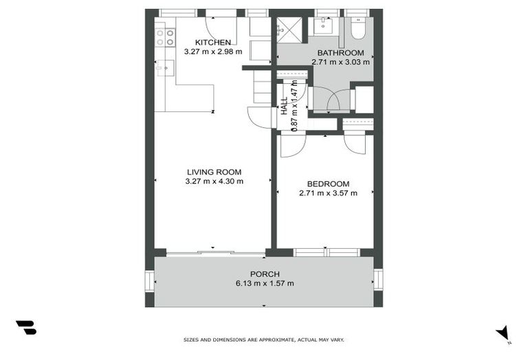
3/19a Verbena Road, Birkdale, Auckland, 0626 is a Residential property built in 1975 with 1 bedroom, 1 bathroom and 1 parking space. The property is estimated to be valued in the range of $550,000 to $600,000.
The property last sold on 2 October 1997 for $114,250. On 1 May 2024, 3/19a Verbena Road, Birkdale, Auckland, 0626 had a Rating Valuation with a Capital Value of $610,000, Land Value of $270,000 and Improvement Value of $340,000.
| Date | Type | Price | Agent/Agency |
|---|---|---|---|
| 25 Apr 2026 | Rented | $450 | Kyle Luo of Crockers Property Management Ltd, (Licensed: Reaa 2008) |
| 8 Oct 2025 | Rented | $420 | |
| 2 Nov 2023 | ENQUIRIES OVER | $450,000 | Tracy Allsopp-Smith of Trayne & Co, (Licensed: Reaa 2008) |
| 19 Jan 2023 | BY NEGOTIATION | Price Not Disclosed | Tracy Allsopp-Smith of Trayne & Co, (Licensed: Reaa 2008) |
| 2 Oct 1997 | SOLD | $114,250 | |
| 12 Jun 1993 | SOLD | $63,000 |
Unit C Deposited Plan 157112
There are no similar properties in the area that are listed for sale or recently sold.