
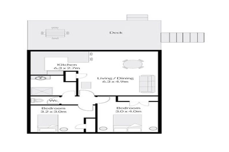
20 Saffron Street, Birkdale, Auckland, 0626 is a Residential property built in 1963 with 0 bedrooms, 3 bathrooms and 1 parking space. The property is estimated to be valued in the range of $1,400,000 to $1,500,000.
The property last sold on 22 July 2021 for $1,605,500. It was sold by N/A. On 1 May 2024, 20 Saffron Street, Birkdale, Auckland, 0626 had a Rating Valuation with a Capital Value of $1,475,000, Land Value of $740,000 and Improvement Value of $735,000.
| Date | Type | Price | Agent/Agency |
|---|---|---|---|
| 18 Aug 2025 | Rented | $380 | |
| 2 Oct 2024 | Rented | $580 | |
| 3 Mar 2024 | Rented | $400 | |
| 22 Jul 2021 | SOLD | $1,605,500 | |
| 1 Jul 2021 | UNKNOWN | Price Not Disclosed | Regan Golding of Ray White Carpenter Realty Ltd |
| 22 Jun 2005 | SOLD | $350,000 | |
| 3 May 1999 | SOLD | $200,000 | |
| 24 Apr 1995 | SOLD | $149,000 | |
| 11 Apr 1988 | SOLD | $112,000 |
Lot 39 Deposited Plan 49304
There are no similar properties in the area that are listed for sale or recently sold.