
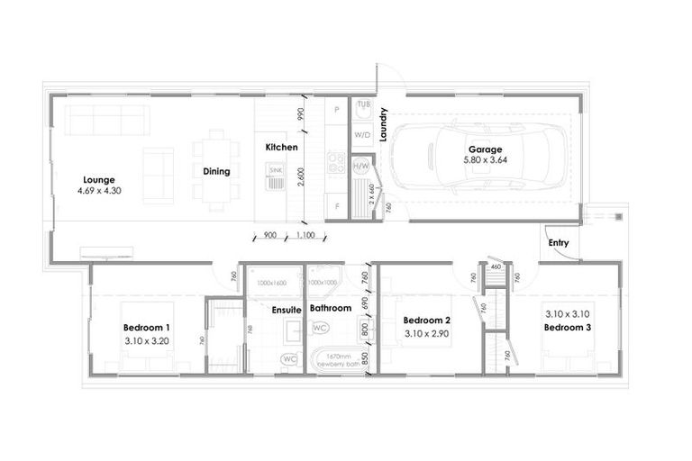
41 O'sullivan Drive, Matamata, 3400 is a Residential property built in 2023 with 3 bedrooms, 2 bathrooms and 2 parking spaces. The property is estimated to be valued in the range of $700,000 to $750,000.
The property last sold on 17 April 2025 for $725,000. It was sold by Venture Developements Ltd. On 1 July 2024, 41 O'sullivan Drive, Matamata, 3400 had a Rating Valuation with a Capital Value of $720,000, Land Value of $275,000 and Improvement Value of $445,000.
| Date | Type | Price | Agent/Agency |
|---|---|---|---|
| 17 Apr 2025 | SOLD | $725,000 | |
| 17 Feb 2025 | Rented | $665 | Myrent.Co.Nz of Myrent.Co.NZ Ltd |
| 23 Oct 2024 | ASKING PRICE | $725,000 | Nykaila Crawford of Venture Developements Ltd |
| 21 Jul 2024 | Rented | $675 | |
| 19 Jun 2024 | BY NEGOTIATION | Price Not Disclosed | |
| 10 Mar 2021 | SOLD | $452,174 |
Lot 40 Deposited Plan 585417
There are no similar properties in the area that are listed for sale or recently sold.