
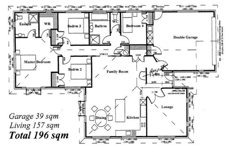
17 Dame Cath Place, Matamata, 3400 is a Residential property built in 2003 with 4 bedrooms, 2 bathrooms and 2 parking spaces. The property is estimated to be valued in the range of $900,000 to $1,000,000.
The property last sold on 1 December 2021 for $950,000. It was sold by Matamata Real Estate, and took 21 days to sell. On 1 July 2024, 17 Dame Cath Place, Matamata, 3400 had a Rating Valuation with a Capital Value of $890,000, Land Value of $430,000 and Improvement Value of $460,000.
| Date | Type | Price | Agent/Agency |
|---|---|---|---|
| 29 Jun 2023 | ASKING PRICE | Price Not Disclosed | Margaret Wright of LJ Hooker Matamata |
| 1 Dec 2021 | SOLD | $950,000 | |
| 11 Nov 2021 | DEADLINE PRIVATE TREATY | Price Not Disclosed | Joanne Morgan of Matamata Real Estate |
| 2 Nov 2020 | ASKING PRICE | $745,000 | |
| 29 Oct 2020 | SOLD | $745,000 | |
| 17 Mar 2014 | SOLD | $540,000 | Margaret Troughton of Bayleys Waikato - Success Realty Ltd |
| 19 Feb 2014 | ASKING PRICE | $549,000 | Margaret Troughton of Bayleys Waikato - Success Realty Ltd |
| 23 Jan 2006 | SOLD | $449,000 | |
| 31 Aug 2003 | SOLD | $72,000 |
Lot 31 Deposited Plan 306636
There are no similar properties in the area that are listed for sale or recently sold.