
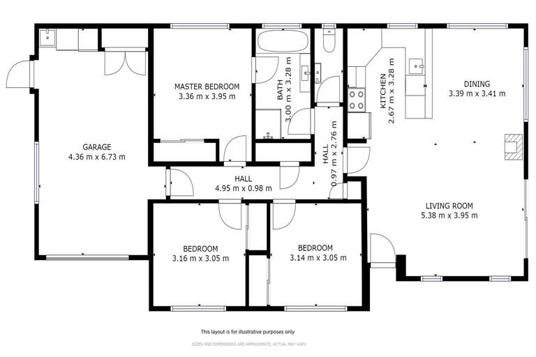
12 Miners Lane, Te Kamo, Whangarei, 0112 is a Residential property built in 2016 with 3 bedrooms, 1 bathroom and 1 parking space. The property is estimated to be valued in the range of $600,000 to $650,000.
The property last sold on 23 November 2020 for $590,000. It was sold by Ray White Whangarei (Goode Leith Realty Ltd), and took 25 days to sell. On 1 July 2024, 12 Miners Lane, Te Kamo, Whangarei, 0112 had a Rating Valuation with a Capital Value of $600,000, Land Value of $270,000 and Improvement Value of $330,000.
| Date | Type | Price | Agent/Agency |
|---|---|---|---|
| 14 Jul 2024 | Rented | $795 | |
| 28 Nov 2023 | Rented | $750 | |
| 30 Aug 2022 | Rented | $690 | |
| 10 Jan 2021 | Rented | $590 | |
| 23 Nov 2020 | SOLD | $590,000 | Joanne Stevens of Ray White Whangarei (Goode Leith Realty Ltd) |
| 30 Oct 2020 | DEADLINE PRIVATE TREATY | Price Not Disclosed | Joanne Stevens of Ray White Whangarei (Goode Leith Realty Ltd) |
| 4 Jul 2018 | SOLD | $490,000 | Richard Lyon of Asset Realty Ltd LJ Hooker, Whangarei Licensed: Reaa 2008 |
| 20 Jun 2018 | BY NEGOTIATION | Price Not Disclosed | Richard Lyon of Asset Realty Ltd LJ Hooker, Whangarei Licensed: Reaa 2008 |
| 13 Jul 2015 | SOLD | $319,400 |
Lot 89 Deposited Plan 422825
There are no similar properties in the area that are listed for sale or recently sold.