
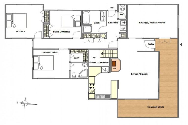
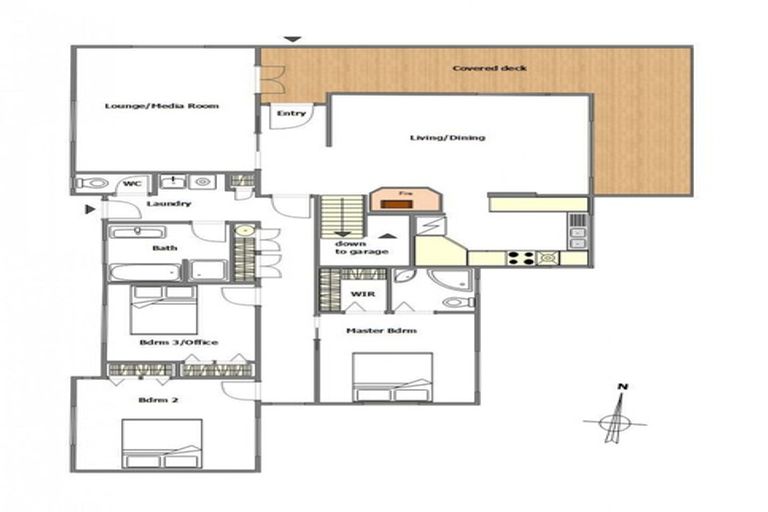
2 Grey Street East, Mangonui, 0420 is a Residential property built in 1993 with 3 bedrooms, 2 bathrooms and 2 parking spaces. The property is estimated to be valued in the range of $750,000 to $800,000.
The property last sold on 13 September 2021 for $835,000. It was sold by Far North Coastal Real Estate. On 1 October 2022, 2 Grey Street East, Mangonui, 0420 had a Rating Valuation with a Capital Value of $850,000, Land Value of $390,000 and Improvement Value of $460,000.
| Date | Type | Price | Agent/Agency |
|---|---|---|---|
| 13 Sep 2021 | SOLD | $835,000 | Michael Healy of Far North Coastal Real Estate |
| 13 Sep 2021 | SOLD | $835,000 | Michael Healy of Far North Coastal Real Estate |
| 24 Apr 2021 | ASKING PRICE | $849,000 | Michael Healy of Far North Coastal Real Estate, (Licensed: Reaa 2008) |
| 4 Sep 2001 | SOLD | $260,000 | |
| 31 Oct 1989 | SOLD | $115,000 |
Lot 2 Deposited Plan 162801
There are no similar properties in the area that are listed for sale or recently sold.