
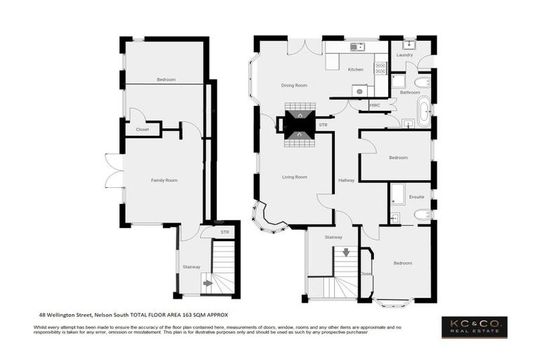
48 Wellington Street, Nelson South, Nelson, 7010 is a Residential property built in 1925 with 3 bedrooms, 2 bathrooms and 1 parking space. The property is estimated to be valued in the range of $750,000 to $800,000.
It is unknown when the property was last sold or how much it was sold for. On 1 September 2024, 48 Wellington Street, Nelson South, Nelson, 7010 had a Rating Valuation with a Capital Value of $760,000, Land Value of $425,000 and Improvement Value of $335,000.
| Date | Type | Price | Agent/Agency |
|---|---|---|---|
| 25 May 2023 | ENQUIRIES OVER | $799,000 | Helen Ruston of Kat Campbell & Co. Real Estate, (Licensed: Reaa 2008) |
| 24 Jan 2012 | ASKING PRICE | $425,000 | |
| 11 Jan 2012 | SOLD | $415,000 | |
| 12 May 2011 | ASKING PRICE | $425,000 | |
| 17 Jun 2010 | ASKING PRICE | $425,000 | |
| 22 May 2003 | SOLD | $290,000 | |
| 30 Nov 2001 | SOLD | $165,000 | |
| 18 Oct 1994 | SOLD | $129,000 | |
| 20 Jun 1983 | SOLD | $46,000 | |
| 30 Oct 1981 | SOLD | $44,000 |
Lot 1 Deposited Plan 2096
There are no similar properties in the area that are listed for sale or recently sold.