
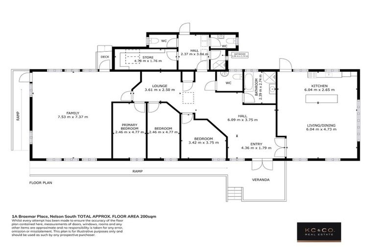
1a Braemar Place, Nelson South, Nelson, 7010 is a Residential property built in 1965 with 3 bedrooms, 2 bathrooms and 1 parking space. The property is estimated to be valued in the range of $650,000 to $700,000.
The property last sold on 24 November 2022 for $651,500. It was sold by Kat Campbell & Co. Real Estate. On 1 September 2024, 1a Braemar Place, Nelson South, Nelson, 7010 had a Rating Valuation with a Capital Value of $620,000, Land Value of $385,000 and Improvement Value of $235,000.
| Date | Type | Price | Agent/Agency |
|---|---|---|---|
| 24 Nov 2022 | SOLD | $651,500 | Susa Guhl of Kat Campbell & Co. Real Estate |
| 21 Oct 2022 | ENQUIRIES OVER | $670,000 | Susa Guhl of Kat Campbell & Co. Real Estate, (Licensed: Reaa 2008) |
Lot 9 Deposited Plan 558436
There are no similar properties in the area that are listed for sale or recently sold.