
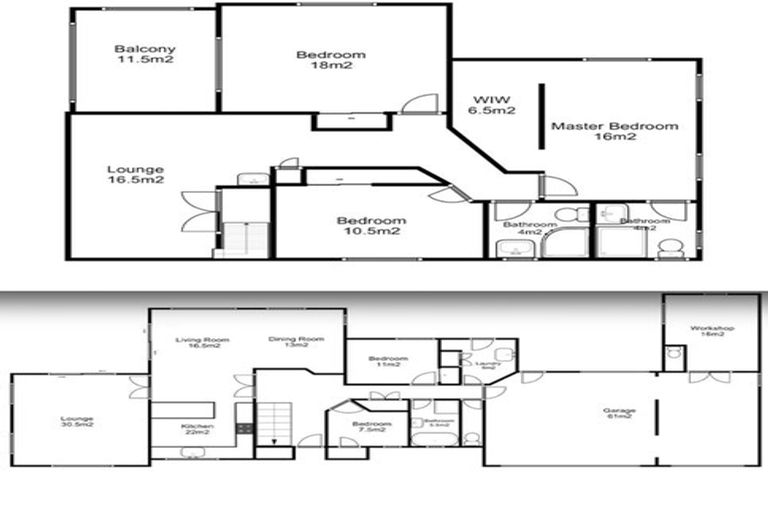
58 O'neill Avenue, Northwood, Christchurch, 8051 is a Residential property built in 2005 with 4 bedrooms, 3 bathrooms and 2 parking spaces. The property is estimated to be valued in the range of $1,400,000 to $1,500,000.
The property last sold on 25 May 2024 for $1,185,000. It was sold by Najib Real Estate Ltd, (Licensed: Reaa 2008), and took 102 days to sell. On 1 August 2025, 58 O'neill Avenue, Northwood, Christchurch, 8051 had a Rating Valuation with a Capital Value of $1,330,000, Land Value of $560,000 and Improvement Value of $770,000.
| Date | Type | Price | Agent/Agency |
|---|---|---|---|
| 25 May 2024 | SOLD | $1,185,000 | |
| 14 Feb 2024 | BY NEGOTIATION | Price Not Disclosed | Nathan Najib of Najib Real Estate Ltd, (Licensed: Reaa 2008) |
| 2 Dec 2014 | SOLD | $875,000 | Lewis Donaldson of Gold Real Estate Group Papanui |
| 4 Nov 2014 | ASKING PRICE | $895,000 | Lewis Donaldson of Gold Real Estate Group Papanui |
| 5 Sep 2003 | SOLD | $145,000 |
Lot 448 Deposited Plan 321210
There are no similar properties in the area that are listed for sale or recently sold.