
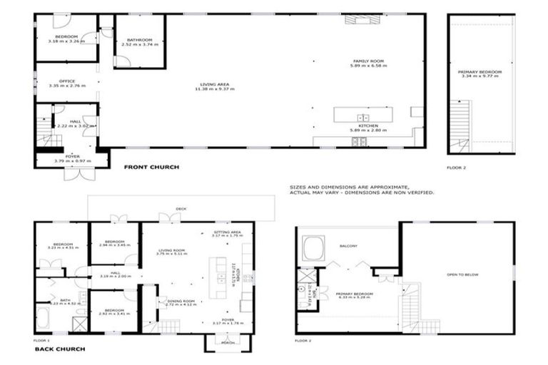
95a Calliope Road, Stanley Point, Auckland, 0624 is a Residential property built in 1930 with 4 bedrooms, 3 bathrooms and 2 parking spaces. The property is estimated to be valued in the range of $3,250,000 to $3,500,000.
The property last sold on 16 June 2025 for $4,250,000. On 1 May 2024, 95a Calliope Road, Stanley Point, Auckland, 0624 had a Rating Valuation with a Capital Value of $4,175,000, Land Value of $1,275,000 and Improvement Value of $2,900,000.
| Date | Type | Price | Agent/Agency |
|---|---|---|---|
| 16 Jun 2025 | SOLD | $4,250,000 | |
| 12 Nov 2024 | BY NEGOTIATION | Price Not Disclosed | Kara Barnston of Up Real Estate |
| 21 Jun 2023 | BY NEGOTIATION | Price Not Disclosed | Kara Barnston of Unlimited Potential Herne Bay, (Licensed: Reaa 2008) |
| 11 Jul 2017 | SOLD | $1,320,000 |
Part Lot 68 Deposited Plan 1055
There are no similar properties in the area that are listed for sale or recently sold.