
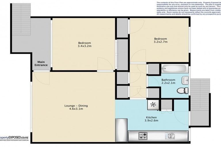
2/613 Beach Road, Rothesay Bay, Auckland, 0630 is a Residential property built in 1965 with 3 bedrooms, 1 bathroom and 1 parking space. The property is estimated to be valued in the range of $800,000 to $900,000.
The property last sold on 13 October 2022 for $770,000. It was sold by Harcourts Cooper & Co - Takapuna, and took 32 days to sell. On 1 May 2024, 2/613 Beach Road, Rothesay Bay, Auckland, 0630 had a Rating Valuation with a Capital Value of $800,000, Land Value of $460,000 and Improvement Value of $340,000.
| Date | Type | Price | Agent/Agency |
|---|---|---|---|
| 13 Oct 2022 | SOLD | $770,000 | |
| 12 Sep 2022 | AUCTION | Price Not Disclosed | Wanly Tsang of Harcourts Cooper & Co - Takapuna |
| 19 Jun 2020 | Rented | $520 | Kathy Lin of Pinkney Property Managment |
| 25 Feb 2018 | SOLD | $740,000 | |
| 8 Feb 2018 | AUCTION | Price Not Disclosed | Chris Gemmell Areinz of Lochore's Real Estate Ltd |
| 24 Dec 2015 | SOLD | $615,000 | Nadja Court of Barfoot & Thompson Ltd Mairangi Bay |
| 21 Oct 2015 | TENDER | Price Not Disclosed | Nadja Court of Barfoot & Thompson Ltd Mairangi Bay |
| 11 Aug 2000 | SOLD | $166,000 |
Lot 65 Deposited Plan 18032
There are no similar properties in the area that are listed for sale or recently sold.