
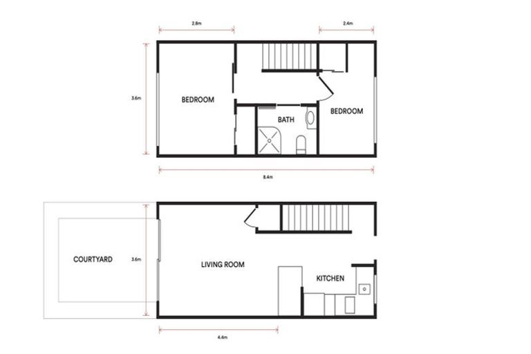
9/72 Kitchener Road, Milford, Auckland, 0620 is a Residential property built in 1965 with 2 bedrooms, 1 bathroom and 1 parking space. The property is estimated to be valued in the range of $900,000 to $1,000,000.
The property last sold on 24 April 2025 for $925,000. It was sold by Harcourts Cooper & Co - Takapuna. On 1 May 2024, 9/72 Kitchener Road, Milford, Auckland, 0620 had a Rating Valuation with a Capital Value of $880,000, Land Value of $710,000 and Improvement Value of $170,000.
| Date | Type | Price | Agent/Agency |
|---|---|---|---|
| 24 Apr 2025 | SOLD | $925,000 | |
| 2 Mar 2025 | ASKING PRICE | $985,000 | Mark Fitzgerald of Harcourts Mairangi Bay |
| 3 Dec 2019 | Rented | $610 | Lizzie Simanke of Harcourts Cooper & Co - Glenfield, (Licensed: Reaa 2008) |
| 4 Jul 2006 | SOLD | $365,000 | |
| 6 Feb 2002 | SOLD | $210,000 |
Lot 1 Deposited Plan 59170
There are no similar properties in the area that are listed for sale or recently sold.