
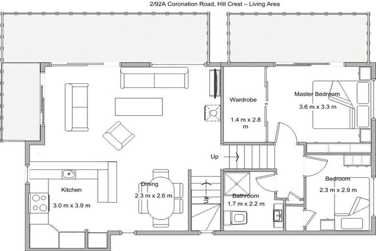
92b Coronation Road, Hillcrest, Auckland, 0627 is a Residential property built in 1992 with 3 bedrooms, 1 bathroom and 2 parking spaces. The property is estimated to be valued in the range of $1,000,000 to $1,100,000.
The property last sold on 11 June 2014 for $660,000. On 1 May 2024, 92b Coronation Road, Hillcrest, Auckland, 0627 had a Rating Valuation with a Capital Value of $1,025,000, Land Value of $650,000 and Improvement Value of $375,000.
| Date | Type | Price | Agent/Agency |
|---|---|---|---|
| 24 Jun 2023 | Rented | $710 | |
| 12 Jan 2022 | Rented | $395 | |
| 10 Feb 2020 | Rented | $390 | |
| 11 Jun 2014 | SOLD | $660,000 | |
| 9 Jul 2003 | SOLD | $337,000 | |
| 26 Sep 2000 | SOLD | $249,000 |
Lot 2 Deposited Plan 504445
There are no similar properties in the area that are listed for sale or recently sold.