
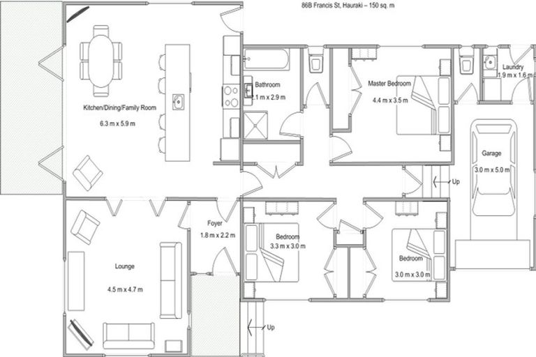
86b Francis Street, Hauraki, Auckland, 0622 is a Residential property built in 1985 with 3 bedrooms, 1 bathroom and 1 parking space. The property is estimated to be valued in the range of $1,400,000 to $1,500,000.
The property last sold on 20 November 2025 for $1,585,000. It took 7 days to sell. On 1 May 2024, 86b Francis Street, Hauraki, Auckland, 0622 had a Rating Valuation with a Capital Value of $1,400,000, Land Value of $910,000 and Improvement Value of $490,000.
| Date | Type | Price | Agent/Agency |
|---|---|---|---|
| 20 Nov 2025 | SOLD | $1,585,000 | |
| 18 Jul 2023 | Rented | $875 | |
| 16 Nov 2021 | Rented | $815 | |
| 18 Jul 2015 | SOLD | $790,000 | |
| 23 May 2003 | SOLD | $390,000 | |
| 28 Mar 2003 | SOLD | $370,000 | |
| 17 Mar 1990 | SOLD | $221,500 | |
| 26 Sep 1989 | SOLD | $55,000 |
Lot 2 Deposited Plan 551143
There are no similar properties in the area that are listed for sale or recently sold.