
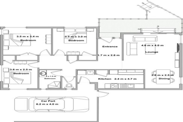
1/23 Weldene Avenue, Glenfield, Auckland, 0629 is a Residential property built in 1961 with 3 bedrooms, 1 bathroom and 2 parking spaces. The property is estimated to be valued in the range of $900,000 to $1,000,000.
The property last sold on 31 May 2019 for $755,000. It was sold by Lochores. On 1 May 2024, 1/23 Weldene Avenue, Glenfield, Auckland, 0629 had a Rating Valuation with a Capital Value of $940,000, Land Value of $550,000 and Improvement Value of $390,000.
| Date | Type | Price | Agent/Agency |
|---|---|---|---|
| 20 Dec 2023 | Rented | $705 | |
| 27 Jun 2022 | Rented | $700 | |
| 31 May 2019 | SOLD | $755,000 |
Flat 1 Deposited Plan 129376
There are no similar properties in the area that are listed for sale or recently sold.