
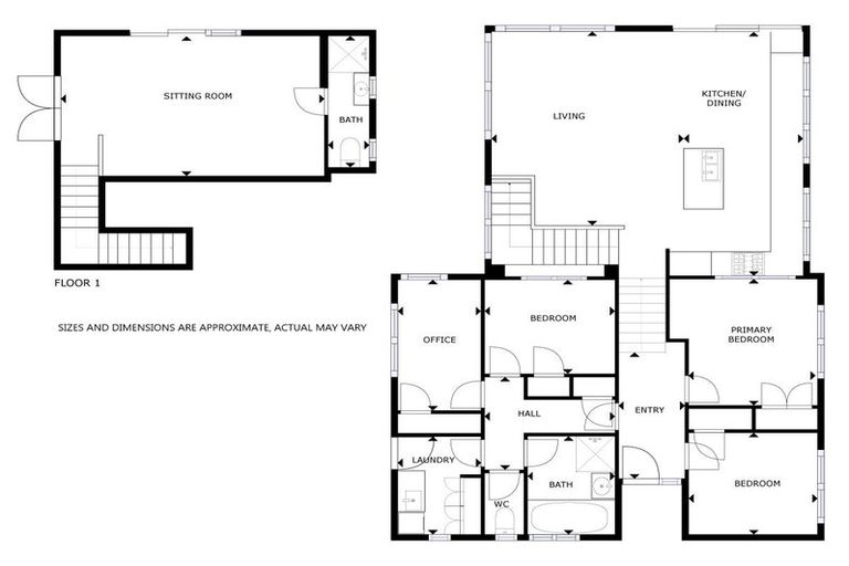
70 Aramoana Avenue, Devonport, Auckland, 0624 is a Residential property built in 1960 with 3 bedrooms, 2 bathrooms and 1 parking space. The property is estimated to be valued in the range of $2,000,000 to $2,200,000.
The property last sold on 27 November 2016 for $1,895,000. It was sold by Ray White. On 1 May 2024, 70 Aramoana Avenue, Devonport, Auckland, 0624 had a Rating Valuation with a Capital Value of $2,250,000, Land Value of $1,450,000 and Improvement Value of $800,000.
| Date | Type | Price | Agent/Agency |
|---|---|---|---|
| 18 Feb 2026 | ASKING PRICE | $2,195,000 | Chris Batchelor of Bayleys Takapuna, (Licensed: Reaa 2008) |
| 19 Jan 2023 | ASKING PRICE | $2,575,000 | Lisa-Maree Wallen of Unlimited Potential Herne Bay, (Licensed: Reaa 2008) |
| 27 Nov 2016 | SOLD | $1,895,000 | |
| 1 Nov 2016 | AUCTION | Price Not Disclosed | Matthew Smith of Ray White Devonport |
| 10 Dec 1994 | SOLD | $320,000 |
Lot 43D Block A Deeds Plan 1010
There are no similar properties in the area that are listed for sale or recently sold.