
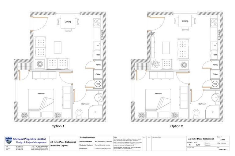
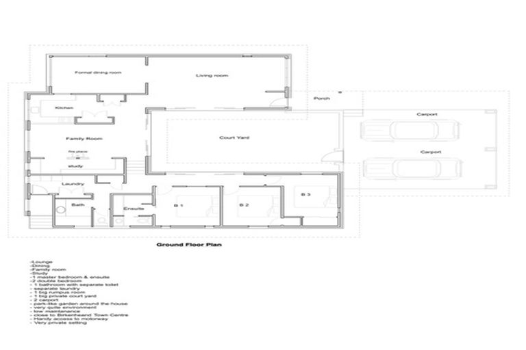
3 Hebe Place, Birkenhead, Auckland, 0626 is a Residential property built in 1980 with 3 bedrooms, 2 bathrooms and 2 parking spaces. The property is estimated to be valued in the range of $1,400,000 to $1,500,000.
The property last sold on 4 March 2016 for $950,000. It took 31 days to sell. On 1 May 2024, 3 Hebe Place, Birkenhead, Auckland, 0626 had a Rating Valuation with a Capital Value of $1,475,000, Land Value of $640,000 and Improvement Value of $835,000.
| Date | Type | Price | Agent/Agency |
|---|---|---|---|
| 5 Nov 2025 | Rented | $400 | Allan Johnston of Shetland Properties Ltd |
| 19 Nov 2023 | Rented | $750 | Allan of Shetland Properties Ltd |
| 22 Nov 2021 | Rented | $690 | Allan Johnston of Shetland Properties Ltd |
| 27 May 2021 | Rented | $720 | Allan Johnston of Shetland Properties Ltd |
| 17 Nov 2020 | Rented | $705 | Allan Johnston of Shetland Properties Ltd |
| 5 Dec 2019 | Rented | $695 | Allan Johnston of Shetland Properties Ltd |
| 5 Aug 2018 | Rented | $680 | |
| 4 Mar 2016 | SOLD | $950,000 | |
| 3 Feb 2016 | AUCTION | Price Not Disclosed | |
| 19 Oct 1984 | SOLD | $140,000 |
Lot 29 Deposited Plan 83385
There are no similar properties in the area that are listed for sale or recently sold.