
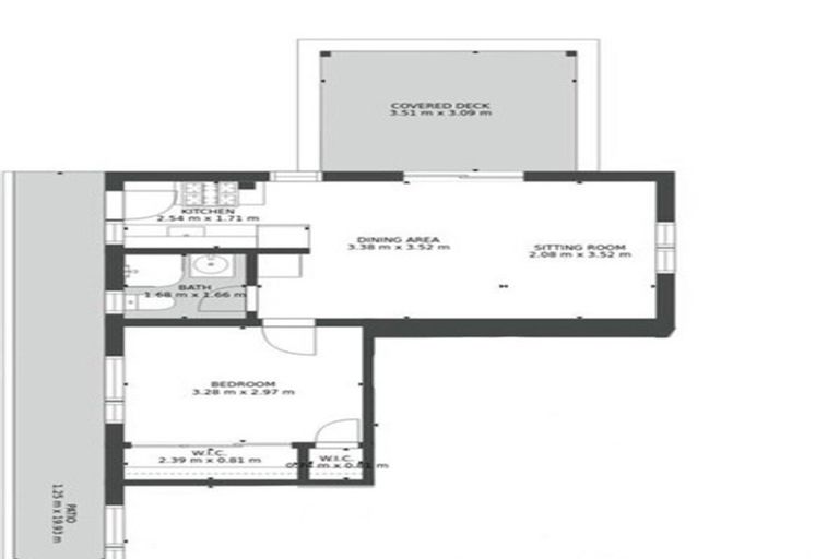
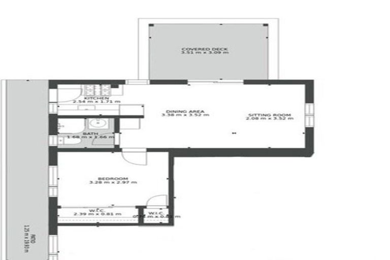
1/20 Kauri Road, Birkenhead, Auckland, 0626 is a Residential property built in 1975 with 4 bedrooms, 1 bathroom and 2 parking spaces. The property is estimated to be valued in the range of $1,300,000 to $1,400,000.
The property last sold on 2 December 2021 for $1,610,000. It took 7 days to sell. On 1 May 2024, 1/20 Kauri Road, Birkenhead, Auckland, 0626 had a Rating Valuation with a Capital Value of $1,325,000, Land Value of $460,000 and Improvement Value of $865,000.
| Date | Type | Price | Agent/Agency |
|---|---|---|---|
| 6 Sep 2025 | Rented | $550 | |
| 13 Sep 2024 | Rented | $550 | |
| 7 Mar 2022 | Rented | $500 | |
| 2 Dec 2021 | SOLD | $1,610,000 | |
| 21 Feb 2021 | Rented | $425 | |
| 23 Jan 2004 | SOLD | $430,000 |
Flat 1 Deposited Plan 132373 and Garage 1 Deposited Plan 132373
There are no similar properties in the area that are listed for sale or recently sold.