
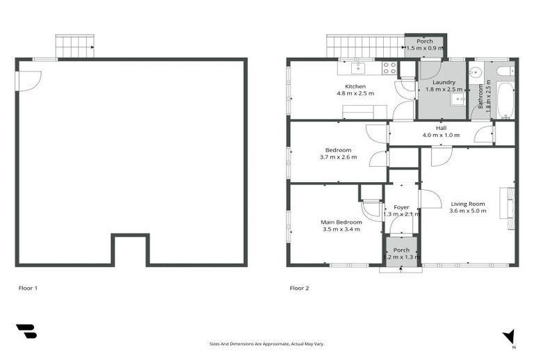
5 Fifeshire Street, Belmont, Auckland, 0622 is a Residential property built in 1951 with 2 bedrooms, 1 bathroom and 1 parking space. The property is estimated to be valued in the range of $1,000,000 to $1,100,000.
It is unknown when the property was last sold or how much it was sold for. On 1 May 2024, 5 Fifeshire Street, Belmont, Auckland, 0622 had a Rating Valuation with a Capital Value of $1,300,000, Land Value of $1,150,000 and Improvement Value of $150,000.
| Date | Type | Price | Agent/Agency |
|---|---|---|---|
| 10 Feb 2026 | Rented | $550 | Myrent.Co.Nz of Myrent.Co.NZ Ltd |
| 5 Dec 2025 | SOLD | $950,000 | Victoria Mules of Bayleys - North Island, (Licensed: Reaa 2008) |
| 19 Nov 2025 | ASKING PRICE | $1,049,000 | Victoria Mules of Bayleys - North Island, (Licensed: Reaa 2008) |
Lot 10A Deposited Plan 47034
There are no similar properties in the area that are listed for sale or recently sold.