1 of 17Sep 25
Loading...
FOR SALE

4 Stout Street Westport, 7825


4 Stout Street , Westport, 7825
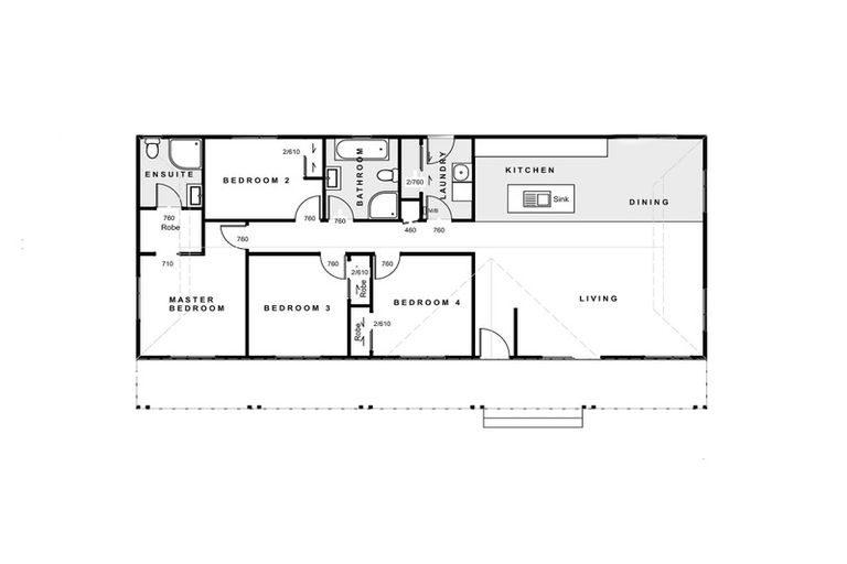
bed4
bathroom2
car-
land684 m2
floor120 m2
Property Type
Residential
Year Built
1910
Last Sale information not available

Estimated Value Range  


An estimate of value is not currently available for this property. There could be insufficient property information or recent sales data. The property could be out of scope (e.g. non-residential, highly unique, rural) or the estimate cannot be determined with high enough confidence.

About 4 Stout Street, Westport, 7825

4 Stout Street, Westport, 7825 is a Residential property built in 1910 with 4 bedrooms, 2 bathrooms and 0 parking spaces. Due to insufficient data, the value of the property cannot be estimated.

It is unknown when the property was last sold or how much it was sold for. On 1 October 2022, 4 Stout Street, Westport, 7825 had a Rating Valuation with a Capital Value of $92,000, Land Value of $89,000 and Improvement Value of $3,000.

Property History

DateTypePriceAgent/Agency
2 Sep 2025ASKING PRICE$85,000
30 Oct 2023ASKING PRICE$85,000
18 Dec 2020BY NEGOTIATIONPrice Not Disclosed
2 Dec 2020SOLD$45,000
14 May 2020ASKING PRICE$315,000
Present Day
2 Sep
2025
Asking Price — $85,000
30 Oct
2023
Asking Price — $85,000
18 Dec
2020
By Negotiation — Price Not Disclosed
2 Dec
2020
Sold for $45,000
5 years 3 months 26 days
14 May
2020
Asking Price — $315,000
1910
Property Built

Commute Calculator

-
-
-
-

Rating Valuation

Capital Value
$92,000
Land Value
$89,000
Improvement Value
$3,000
Legal Description(s)

Lot 2 Deposited Plan 10639

Valuation Date
01-10-2022
Valuation Reference
18960/1100

Additional Information

Roof Construction
Aluminium
Zone
Residential Zone A, 9A
Units of Use
1
Wall Construction
Mix.Material
Maori Land
No
Territorial Authority
Buller District
Land Use
-

Suburb Insights

Comparable Properties

There are no similar properties in the area that are listed for sale or recently sold.