
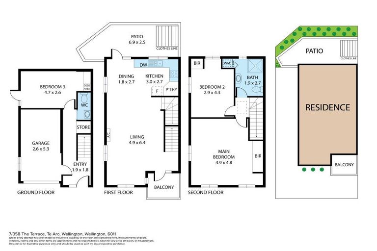
7/358 The Terrace, Te Aro, Wellington, 6011 is a Residential property built in 1999 with 3 bedrooms, 1 bathroom and 1 parking space. The property is estimated to be valued in the range of $800,000 to $900,000.
The property last sold on 7 December 2024 for $825,000. It was sold by Sothebys. On 1 September 2024, 7/358 The Terrace, Te Aro, Wellington, 6011 had a Rating Valuation with a Capital Value of $780,000, Land Value of $310,000 and Improvement Value of $470,000.
| Date | Type | Price | Agent/Agency |
|---|---|---|---|
| 7 Dec 2024 | SOLD | $825,000 | |
| 14 Nov 2024 | ASKING PRICE | Price Not Disclosed | |
| 4 Mar 2002 | SOLD | $340,000 | |
| 12 May 1999 | SOLD | $320,000 | |
| 8 May 1998 | SOLD | $81,338 |
Unit 7 and Accessory Unit 7A Deposited Plan 84892
There are no similar properties in the area that are listed for sale or recently sold.