
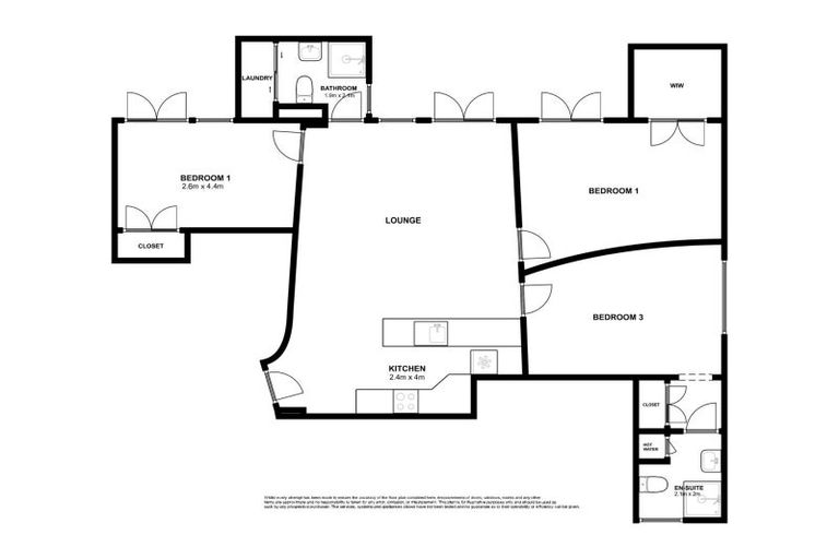
22/60 Courtenay Place, Te Aro, Wellington, 6011 is a Residential property built in 1995 with 3 bedrooms, 2 bathrooms and 0 parking spaces. The property is estimated to be valued in the range of $500,000 to $550,000.
The property last sold on 13 February 2009 for $370,000. It was sold by Remax Wellington, and took 115 days to sell. On 1 September 2024, 22/60 Courtenay Place, Te Aro, Wellington, 6011 had a Rating Valuation with a Capital Value of $490,000, Land Value of $220,000 and Improvement Value of $270,000.
| Date | Type | Price | Agent/Agency |
|---|---|---|---|
| 12 Apr 2023 | ENQUIRIES OVER | $350,000 | Mitchell Sedgwick of Lowe & Co, (Licensed: Reaa 2008) |
| 4 May 2012 | ENQUIRIES OVER | $385,000 | John Kettle of Tommy's Real Estate Mreinz |
| 13 Feb 2009 | SOLD | $370,000 | Dianne Gates of Remax Wellington |
| 22 Oct 2008 | TENDER | Price Not Disclosed | Dianne Gates of Remax Wellington |
Unit 22 Deposited Plan 78693
There are no similar properties in the area that are listed for sale or recently sold.