
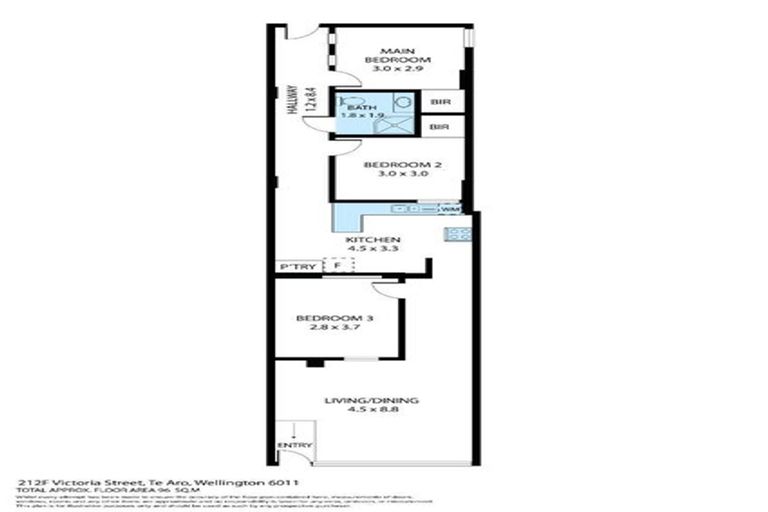
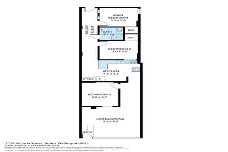
195a Vivian Street, Te Aro, Wellington, 6011 is a Residential property built in 2005 with 3 bedrooms, 1 bathroom and 0 parking spaces. The property is estimated to be valued in the range of $375,000 to $400,000.
The property last sold on 18 April 2017 for $414,000. It was sold by Team Wellington Limited, and took 57 days to sell. On 1 September 2024, 195a Vivian Street, Te Aro, Wellington, 6011 had a Rating Valuation with a Capital Value of $325,000, Land Value of $195,000 and Improvement Value of $130,000.
| Date | Type | Price | Agent/Agency |
|---|---|---|---|
| 28 May 2024 | Rented | $540 | Quinovic Lambton of Quinovic Thorndon |
| 30 Jan 2024 | BY NEGOTIATION | Price Not Disclosed | Sam Auton of Tommy's Real Estate Limited, (Licensed: Reaa 2008) |
| 11 Jul 2023 | Rented | $650 | Luke Parker of Tommys Property Management |
| 18 Jan 2018 | ASKING PRICE | Price Not Disclosed | Jane Park of Team Wellington Ltd Harcourts, Wellington City Licensed: Reaa 2008 |
| 18 Apr 2017 | SOLD | $414,000 | Jane Park of Team Wellington Limited |
| 21 Feb 2017 | AUCTION | Price Not Disclosed | Jane Park of Team Wellington Limited |
Unit F Deposited Plan 332880
There are no similar properties in the area that are listed for sale or recently sold.