
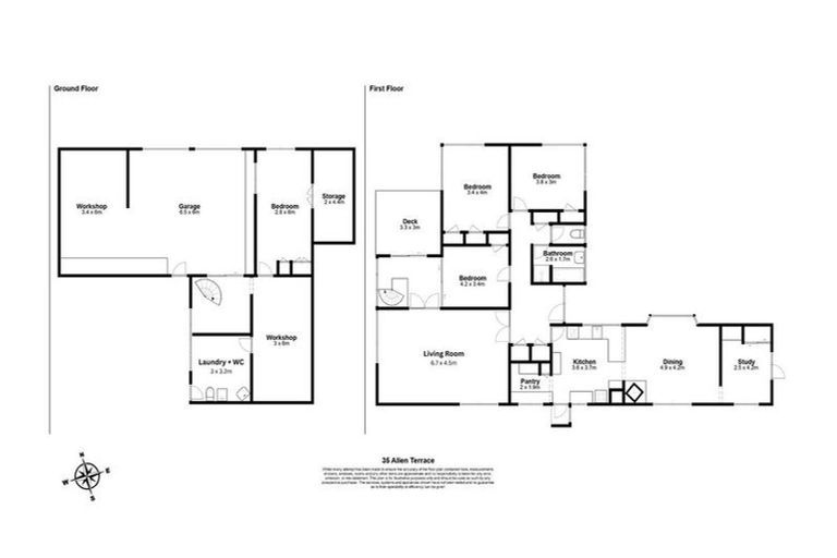
35 Allen Terrace, Tawa, Wellington, 5028 is a Residential property built in 1957 with 4 bedrooms, 1 bathroom and 2 parking spaces. The property is estimated to be valued in the range of $800,000 to $900,000.
The property last sold on 10 March 2026 for an unknown price. It was sold by Lowe & Co, (Licensed: Reaa 2008), and took 15 days to sell. On 1 September 2024, 35 Allen Terrace, Tawa, Wellington, 5028 had a Rating Valuation with a Capital Value of $930,000, Land Value of $380,000 and Improvement Value of $550,000.
| Date | Type | Price | Agent/Agency |
|---|---|---|---|
| 10 Mar 2026 | $0 | Pending Settlement Advice | |
| 24 Feb 2026 | ENQUIRIES OVER | $795,000 | Aaron Nation of Lowe & Co, (Licensed: Reaa 2008) |
| 6 Feb 2020 | Rented | $625 | Mark Dickison of Total Rental Solutions |
| 26 Aug 2019 | SOLD | $647,500 | Dianne Dunbar of Esplanade Realty Ltd Tommys Mana Licensed: Reaa 2008 |
| 23 Jul 2019 | ASKING PRICE | Price Not Disclosed | Dianne Dunbar of Esplanade Realty Ltd Tommys Mana Licensed: Reaa 2008 |
Lot 23 Deposited Plan 18679
There are no similar properties in the area that are listed for sale or recently sold.