
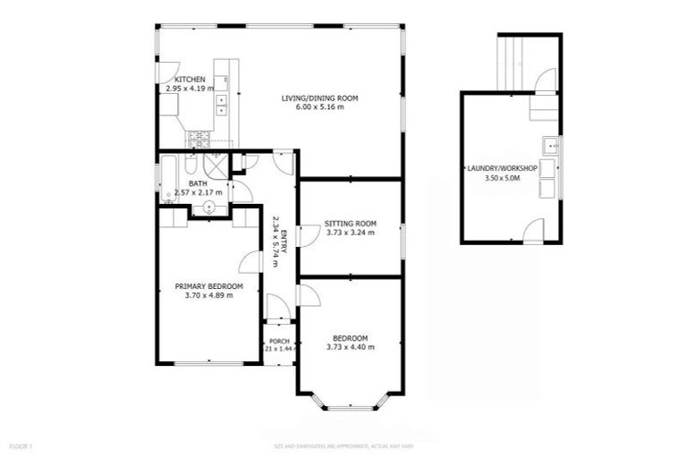
71 Maida Vale Road, Roseneath, Wellington, 6011 is a Residential property built in 1910 with 3 bedrooms, 1 bathroom and 3 parking spaces. The property is estimated to be valued in the range of $2,000,000 to $2,200,000.
It is unknown when the property was last sold or how much it was sold for. On 1 September 2024, 71 Maida Vale Road, Roseneath, Wellington, 6011 had a Rating Valuation with a Capital Value of $2,110,000, Land Value of $770,000 and Improvement Value of $1,340,000.
| Date | Type | Price | Agent/Agency |
|---|---|---|---|
| 17 Jul 2023 | AUCTION | Price Not Disclosed | Jane Park of Team Group Realty Limited, Harcourts Wellington City, (Licensed: Reaa 2008) |
| 28 Feb 2009 | DEADLINE PRIVATE TREATY | $1,500,000 | Bill Mathieson of Tommys |
| 1 Nov 2008 | TENDER | Price Not Disclosed | Nicholas Reeve of Remax Leaders |
Lot 2 Deposited Plan 87097
There are no similar properties in the area that are listed for sale or recently sold.