
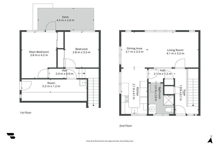
3 Brydon Way, Paparangi, Wellington, 6037 is a Residential property built in 1972 with 2 bedrooms, 1 bathroom and 1 parking space. The property is estimated to be valued in the range of $500,000 to $550,000.
The property last sold on 1 July 2010 for $248,000. It was sold by First National Guardian, and took 59 days to sell. On 1 September 2024, 3 Brydon Way, Paparangi, Wellington, 6037 had a Rating Valuation with a Capital Value of $590,000, Land Value of $265,000 and Improvement Value of $325,000.
| Date | Type | Price | Agent/Agency |
|---|---|---|---|
| 15 Jan 2026 | BY NEGOTIATION | Price Not Disclosed | Julianne Norman of Lowe & Co, (Licensed: Reaa 2008) |
| 1 Jul 2010 | SOLD | $248,000 | Margaret McKeefry of First National Guardian |
| 4 May 2010 | DEADLINE PRIVATE TREATY | $250,000 | Margaret McKeefry of First National Guardian |
| 16 Sep 1987 | SOLD | $90,500 | |
| 8 Jul 1981 | SOLD | $33,200 |
Lot 2 Deposited Plan 32584
There are no similar properties in the area that are listed for sale or recently sold.