
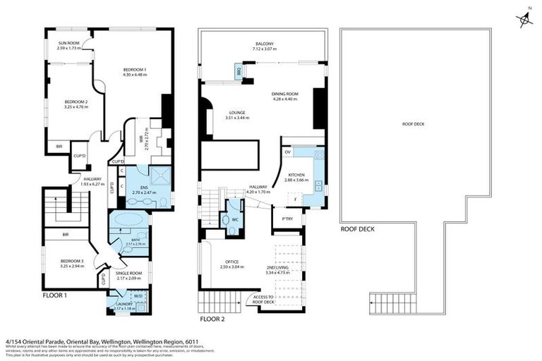
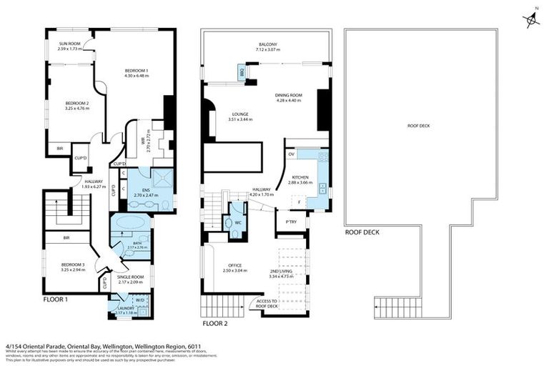
4/154 Oriental Parade, Oriental Bay, Wellington, 6011 is a Residential property built in 1930 with 3 bedrooms, 2 bathrooms and 2 parking spaces. The property is estimated to be valued in the range of $1,600,000 to $1,800,000.
The property last sold on 8 February 1991 for $495,000. On 1 September 2024, 4/154 Oriental Parade, Oriental Bay, Wellington, 6011 had a Rating Valuation with a Capital Value of $1,750,000, Land Value of $875,000 and Improvement Value of $875,000.
| Date | Type | Price | Agent/Agency |
|---|---|---|---|
| 5 Mar 2026 | Rented | $850 | Anna of Ray Simpson Real Estate |
| 17 Jul 2025 | BY NEGOTIATION | Price Not Disclosed | John Kettle of Tommy's Real Estate Limited, (Licensed: Reaa 2008) |
| 11 Jun 2025 | Rented | $2,000 | Anna of Ray Simpson Real Estate |
| 14 Dec 2021 | Rented | $1,750 | Anna of Ray Simpson Real Estate |
| 24 Mar 2021 | Rented | $1,750 | Anna of Ray Simpson Real Estate, (Licensed: Reaa 2008) |
| 8 Feb 1991 | SOLD | $495,000 |
Unit D and Accessory Unit 2-3, 8-9 and 11-14 Deposited Plan 70247
There are no similar properties in the area that are listed for sale or recently sold.