
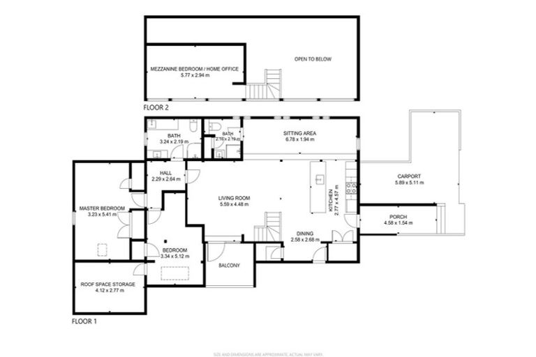
73 Orangi Kaupapa Road, Northland, Wellington, 6012 is a Residential property built in 1973 with 3 bedrooms, 2 bathrooms and 1 parking space. The property is estimated to be valued in the range of $800,000 to $900,000.
The property last sold on 8 December 2021 for $1,153,000. It was sold by Team Wellington Limited. On 1 September 2024, 73 Orangi Kaupapa Road, Northland, Wellington, 6012 had a Rating Valuation with a Capital Value of $860,000, Land Value of $530,000 and Improvement Value of $330,000.
| Date | Type | Price | Agent/Agency |
|---|---|---|---|
| 8 Dec 2021 | SOLD | $1,153,000 | |
| 18 Nov 2021 | TENDER | Price Not Disclosed | Alex Mulholland of Harcourts Wellington City |
| 7 Mar 2015 | AUCTION | Price Not Disclosed | Roz Scott of Team Wellington Ltd |
| 28 Oct 1986 | SOLD | $140,000 |
Unit 2 and Accessory Unit 2A Deposited Plan 61160
There are no similar properties in the area that are listed for sale or recently sold.