
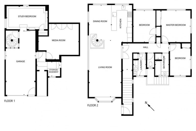
73 Amapur Drive, Ngaio, Wellington, 6035 is a Residential property built in 1970 with 3 bedrooms, 1 bathroom and 1 parking space. The property is estimated to be valued in the range of $800,000 to $900,000.
The property last sold on 4 March 2021 for $1,125,000. It was sold by Tall Poppy Real Estate (Licensed: Reaa 2008), and took 12 days to sell. On 1 September 2024, 73 Amapur Drive, Ngaio, Wellington, 6035 had a Rating Valuation with a Capital Value of $850,000, Land Value of $445,000 and Improvement Value of $405,000.
| Date | Type | Price | Agent/Agency |
|---|---|---|---|
| 4 Mar 2021 | SOLD | $1,125,000 | Fiona McGlinchey of Tall Poppy Real Estate (Licensed: Reaa 2008) |
| 21 Feb 2021 | ENQUIRIES OVER | $930,000 | Fiona McGlinchey of Tall Poppy Real Estate (Licensed: Reaa 2008) |
| 11 Apr 1990 | SOLD | $186,000 | |
| 10 Jan 1986 | SOLD | $133,000 | |
| 28 Oct 1982 | SOLD | $84,000 |
Lot 32 Deposited Plan 28372
There are no similar properties in the area that are listed for sale or recently sold.