
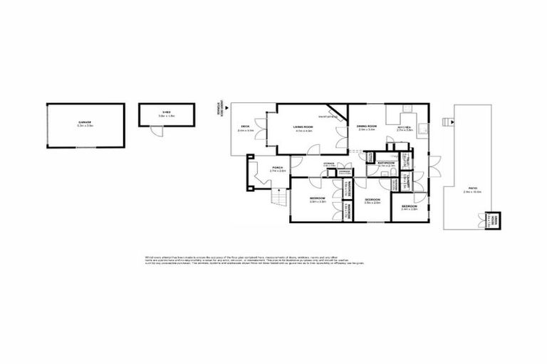
41b Kenya Street, Ngaio, Wellington, 6035 is a Residential property built in 1922 with 3 bedrooms, 1 bathroom and 1 parking space. The property is estimated to be valued in the range of $1,200,000 to $1,300,000.
The property last sold on 31 March 2023 for $1,200,000. It was sold by Lowe & Co, (Licensed: Reaa 2008), and took 74 days to sell. On 1 September 2024, 41b Kenya Street, Ngaio, Wellington, 6035 had a Rating Valuation with a Capital Value of $1,170,000, Land Value of $650,000 and Improvement Value of $520,000.
| Date | Type | Price | Agent/Agency |
|---|---|---|---|
| 31 Mar 2023 | SOLD | $1,200,000 | Emma Young of Lowe & Co, (Licensed: Reaa 2008) |
| 17 Jan 2023 | ENQUIRIES OVER | $1,145,000 | Mitchell Sedgwick of Lowe & Co, (Licensed: Reaa 2008) |
| 4 Feb 2010 | SOLD | $615,000 | |
| 27 Jan 2010 | ASKING PRICE | $610,000 | |
| 6 Dec 2006 | TENDER | Price Not Disclosed | Craig Freear of Remax Johnsonville |
| 28 Nov 2006 | SOLD | $540,000 | Craig Freear of Remax Johnsonville |
| 1 Feb 2003 | SOLD | $346,500 | Mark Hewett of Leaders |
| 22 Jan 2003 | DEADLINE PRIVATE TREATY | $340,000 | Mark Hewett of Leaders |
| 8 Jul 1998 | SOLD | $290,000 | |
| 21 Jul 1992 | SOLD | $202,000 | |
| 31 May 1991 | SOLD | $181,000 | |
| 28 Jan 1988 | SOLD | $170,000 |
Lot 2 Deposited Plan 22082
There are no similar properties in the area that are listed for sale or recently sold.