
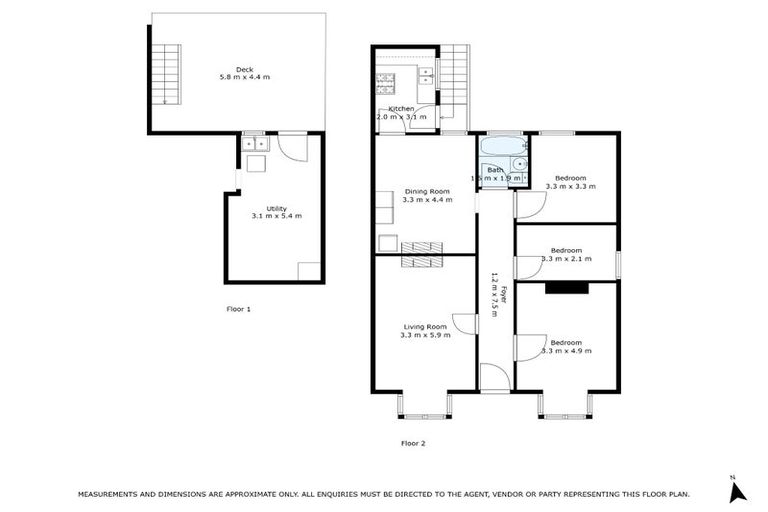
48 Hall Street, Newtown, Wellington, 6021 is a Residential property built in 1907 with 3 bedrooms, 1 bathroom and 0 parking spaces. The property is estimated to be valued in the range of $800,000 to $900,000.
The property last sold on 12 March 2026 for $835,500. It was sold by Team Group Realty Limited, Harcourts Wellington City, (Licensed: Reaa 2008), and took 49 days to sell. On 1 September 2024, 48 Hall Street, Newtown, Wellington, 6021 had a Rating Valuation with a Capital Value of $800,000, Land Value of $600,000 and Improvement Value of $200,000.
| Date | Type | Price | Agent/Agency |
|---|---|---|---|
| 12 Mar 2026 | SOLD | $835,500 | |
| 23 Jan 2026 | ENQUIRIES OVER | $799,000 | Ryan Hopkins of Team Group Realty Limited, Harcourts Wellington City, (Licensed: Reaa 2008) |
| 13 Oct 2025 | SOLD | $566,500 | |
| 26 Aug 2025 | BY NEGOTIATION | Price Not Disclosed | Ryan Hopkins of Team Group Realty Limited, Harcourts Wellington City, (Licensed: Reaa 2008) |
| 25 Jan 2001 | SOLD | $245,000 | |
| 25 Jun 1997 | SOLD | $205,000 | |
| 18 Jan 1994 | SOLD | $76,000 |
Lot 3 Deposited Plan 1106
There are no similar properties in the area that are listed for sale or recently sold.