
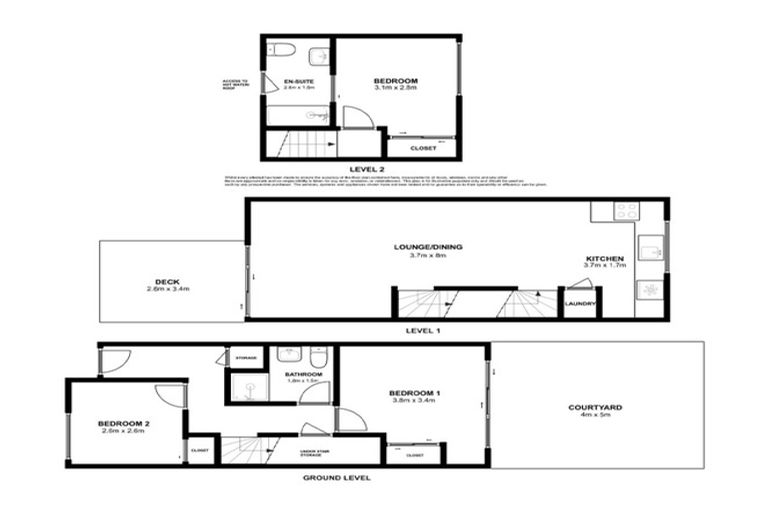
17/31 Princess Terrace, Newtown, Wellington, 6021 is a Residential property built in 2016 with 3 bedrooms, 2 bathrooms and 1 parking space. The property is estimated to be valued in the range of $750,000 to $800,000.
The property last sold on 3 October 2022 for $905,000. It was sold by Lowe & Co, and took 20 days to sell. On 1 September 2024, 17/31 Princess Terrace, Newtown, Wellington, 6021 had a Rating Valuation with a Capital Value of $760,000, Land Value of $405,000 and Improvement Value of $355,000.
| Date | Type | Price | Agent/Agency |
|---|---|---|---|
| 5 Mar 2025 | Rented | $790 | Despina Raei of Nest Property Management Ltd |
| 3 Oct 2022 | SOLD | $905,000 | Emma Young of Lowe & Co |
| 14 Sep 2022 | ENQUIRIES OVER | $885,000 | Emma Young of Lowe & Co |
| 6 Jul 2015 | SOLD | $453,000 |
Principal Unit 17 Deposited Plan 493744
There are no similar properties in the area that are listed for sale or recently sold.