
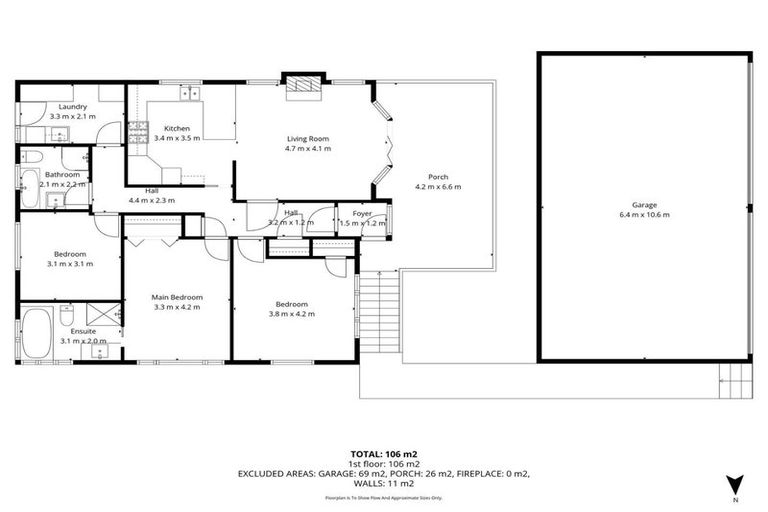
144 Newlands Road, Newlands, Wellington, 6037 is a Residential property built in 1935 with 3 bedrooms, 2 bathrooms and 1 parking space. The property is estimated to be valued in the range of $750,000 to $800,000.
The property last sold on 28 September 1987 for $125,000. On 1 September 2024, 144 Newlands Road, Newlands, Wellington, 6037 had a Rating Valuation with a Capital Value of $770,000, Land Value of $330,000 and Improvement Value of $440,000.
| Date | Type | Price | Agent/Agency |
|---|---|---|---|
| 29 Jan 2026 | Rented | $740 | Kristi Dahm of Just Property Management Ltd |
| 12 Feb 2011 | DEADLINE PRIVATE TREATY | $340,000 | Patricia Searle of Tommy's Real Estate |
| 28 Sep 1987 | SOLD | $125,000 |
Flat C Deposited Plan 56542
There are no similar properties in the area that are listed for sale or recently sold.