
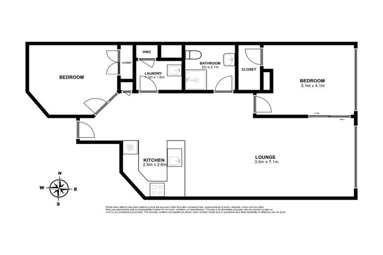
4f/5 Kent Terrace, Mount Victoria, Wellington, 6011 is a Residential property built in 1999 with 2 bedrooms, 1 bathroom and 1 parking space. The property is estimated to be valued in the range of $550,000 to $600,000.
The property last sold on 19 October 2023 for $651,000. It was sold by Lowe & Co, (Licensed: Reaa 2008), and took 16 days to sell. On 1 September 2024, 4f/5 Kent Terrace, Mount Victoria, Wellington, 6011 had a Rating Valuation with a Capital Value of $530,000, Land Value of $240,000 and Improvement Value of $290,000.
| Date | Type | Price | Agent/Agency |
|---|---|---|---|
| 19 Oct 2023 | SOLD | $651,000 | |
| 4 Oct 2023 | ENQUIRIES OVER | $595,000 | Emma Young of Lowe & Co, (Licensed: Reaa 2008) |
| 13 Mar 2003 | SOLD | $260,000 | |
| 23 Nov 1998 | SOLD | $229,000 |
Unit 4F and Accessory Unit 47 and 1/40 share in Accessory Unit 55 and 1/40 share in Accessory Unit 56 Deposited Plan 87152
There are no similar properties in the area that are listed for sale or recently sold.