
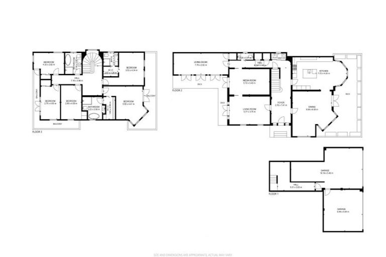
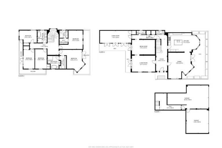
25 Brougham Street, Mount Victoria, Wellington, 6011 is a Residential property built in 1890 with 5 bedrooms, 3 bathrooms and 4 parking spaces. The property is estimated to be valued in the range of $3,250,000 to $3,500,000.
The property last sold on 22 October 2010 for $2,430,000. On 1 September 2024, 25 Brougham Street, Mount Victoria, Wellington, 6011 had a Rating Valuation with a Capital Value of $3,360,000, Land Value of $1,260,000 and Improvement Value of $2,100,000.
| Date | Type | Price | Agent/Agency |
|---|---|---|---|
| 29 Apr 2023 | Rented | $2,800 | Harrison Vaughan of Tommys Property Management |
| 6 Apr 2023 | BY NEGOTIATION | Price Not Disclosed | Michael Jones of Lowe & Co, (Licensed: Reaa 2008) |
| 22 Oct 2010 | SOLD | $2,430,000 | |
| 19 Feb 2010 | SOLD | $2,500,000 | Gael Van Hattum of Remax Leaders |
| 5 Sep 2009 | TENDER | Price Not Disclosed | Gael Van Hattum of Remax Leaders |
| 29 Nov 2008 | TENDER | Price Not Disclosed | Liz Gamble of Bayleys |
| 7 Aug 2007 | SOLD | $1,280,000 | Anne Curtis of Ray White |
| 7 Aug 2007 | TENDER | Price Not Disclosed | Anne Curtis of Ray White |
| 25 Mar 1988 | SOLD | $340,000 | |
| 18 Nov 1986 | SOLD | $277,000 |
Part Section 338 City of Wellington
There are no similar properties in the area that are listed for sale or recently sold.