
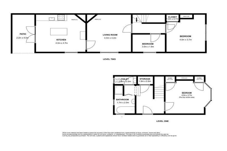
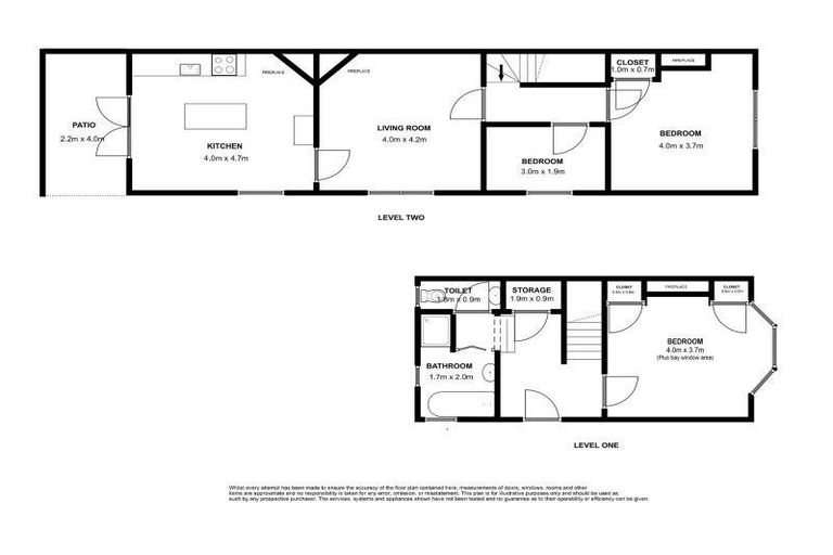
80 Rolleston Street, Mount Cook, Wellington, 6021 is a Residential property built in 1900 with 3 bedrooms, 1 bathroom and 0 parking spaces. The property is estimated to be valued in the range of $800,000 to $900,000.
The property last sold on 5 February 2026 for an unknown price. It was sold by Team Group Realty Limited, Harcourts Wellington City, (Licensed: Reaa 2008), and took 30 days to sell. On 1 September 2024, 80 Rolleston Street, Mount Cook, Wellington, 6021 had a Rating Valuation with a Capital Value of $930,000, Land Value of $475,000 and Improvement Value of $455,000.
| Date | Type | Price | Agent/Agency |
|---|---|---|---|
| 5 Feb 2026 | $0 | Pending Settlement Advice | |
| 7 Jan 2026 | ASKING PRICE | Price Not Disclosed | Erin Rush of Team Group Realty Limited, Harcourts Wellington City, (Licensed: Reaa 2008) |
| 24 Nov 2025 | Rented | $770 | |
| 1 Jun 2024 | Rented | $770 | |
| 28 May 2023 | Rented | $770 | |
| 2 Jun 2022 | Rented | $770 | |
| 5 Apr 2022 | BY NEGOTIATION | Price Not Disclosed | Craig Lowe of Lowe & Co, (Licensed: Reaa 2008) |
| 31 Oct 2019 | Rented | $650 | Proper Renting of Proper |
| 21 Aug 2002 | SOLD | $253,000 | Halina Kuchciak of Leaders |
| 10 Aug 2002 | TENDER | Price Not Disclosed | Halina Kuchciak of Leaders |
| 18 Jan 1994 | SOLD | $118,500 | |
| 26 Nov 1993 | SOLD | $104,500 |
Lot 1-2 Deposited Plan 12581
There are no similar properties in the area that are listed for sale or recently sold.