
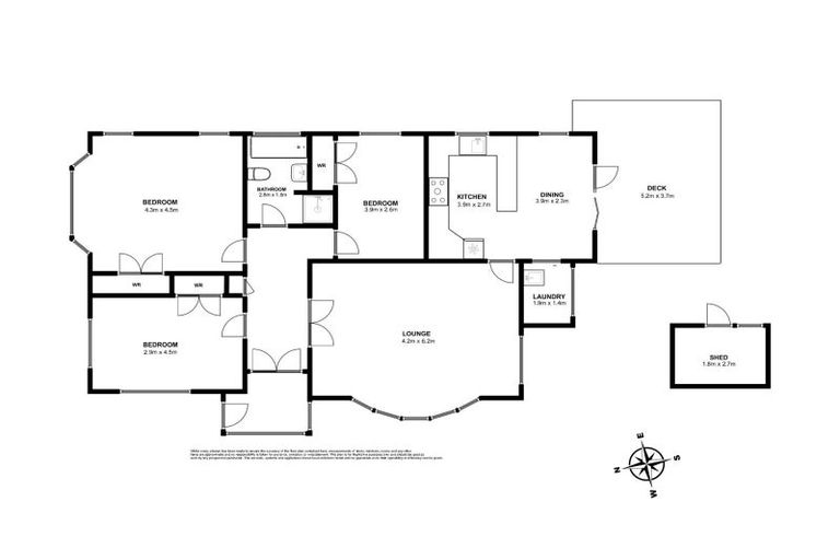
72 Park Road, Miramar, Wellington, 6022 is a Residential property built in 1930 with 3 bedrooms, 1 bathroom and 2 parking spaces. The property is estimated to be valued in the range of $1,000,000 to $1,100,000.
The property last sold on 24 February 2026 for an unknown price. It was sold by Lowe & Co, (Licensed: Reaa 2008), and took 42 days to sell. On 1 September 2024, 72 Park Road, Miramar, Wellington, 6022 had a Rating Valuation with a Capital Value of $1,125,000, Land Value of $700,000 and Improvement Value of $425,000.
| Date | Type | Price | Agent/Agency |
|---|---|---|---|
| 24 Feb 2026 | $0 | Pending Settlement Advice | |
| 14 Jan 2026 | ENQUIRIES OVER | $950,000 | Sonya Jivan of Lowe & Co, (Licensed: Reaa 2008) |
| 1 Nov 2023 | DEADLINE PRIVATE TREATY | Price Not Disclosed | Clare Newton Smith of Lowe & Co, (Licensed: Reaa 2008) |
| 22 Dec 2009 | SOLD | $570,000 | Trish Snowden of Remax Leaders |
| 28 Nov 2009 | ASKING PRICE | Price Not Disclosed | Trish Snowden of Remax Leaders |
| 3 May 2008 | DEADLINE PRIVATE TREATY | $580,000 | Margo McAuley of Tommys |
| 14 May 2003 | DEADLINE PRIVATE TREATY | $180,000 | Vijay Vithal of Leaders Central & Southern Suburbs |
| 17 Mar 2002 | SOLD | $325,000 |
Unit 2 Deposited Plan 319460
There are no similar properties in the area that are listed for sale or recently sold.