
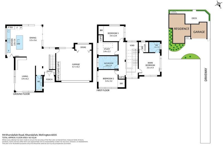
94b Khandallah Road, Khandallah, Wellington, 6035 is a Residential property built in 2003 with 4 bedrooms, 2 bathrooms and 2 parking spaces. The property is estimated to be valued in the range of $1,600,000 to $1,800,000.
The property last sold on 6 March 2025 for $1,570,000. It was sold by Tommy's Real Estate Limited, (Licensed: Reaa 2008). On 1 September 2024, 94b Khandallah Road, Khandallah, Wellington, 6035 had a Rating Valuation with a Capital Value of $1,580,000, Land Value of $940,000 and Improvement Value of $640,000.
| Date | Type | Price | Agent/Agency |
|---|---|---|---|
| 6 Mar 2025 | SOLD | $1,570,000 | |
| 12 Feb 2025 | ENQUIRIES OVER | $1,525,000 | Sam Newble of Tommy's Real Estate Ltd (Wellington Office) |
| 26 Feb 2024 | Rented | $1,300 | Hilary Sampson of Tommys Property Management |
| 23 Jan 2013 | SOLD | $950,000 | Helen Anderson of Tommy's Real Estate Mreinz |
| 12 Jul 2012 | ENQUIRIES OVER | $945,000 | Helen Anderson of Tommy's Real Estate Mreinz |
| 6 Jul 2004 | SOLD | $740,000 | Helen Anderson of Tommys Johnsonville |
| 9 Jun 2004 | DEADLINE PRIVATE TREATY | $730,000 | Helen Anderson of Tommys Johnsonville |
Lot 2 Deposited Plan 90952
There are no similar properties in the area that are listed for sale or recently sold.