
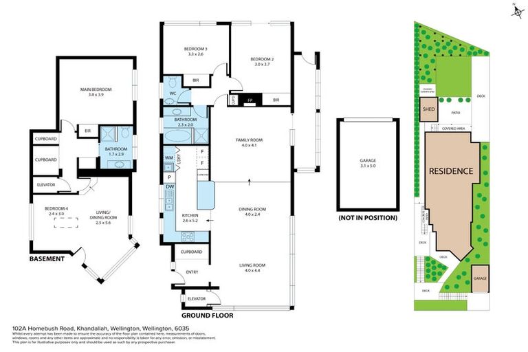
102a Homebush Road, Khandallah, Wellington, 6035 is a Residential property built in 1974 with 4 bedrooms, 2 bathrooms and 2 parking spaces. The property is estimated to be valued in the range of $1,100,000 to $1,200,000.
The property last sold on 6 March 2025 for $1,055,000. It was sold by Harcourts Wellington City. On 1 September 2024, 102a Homebush Road, Khandallah, Wellington, 6035 had a Rating Valuation with a Capital Value of $1,050,000, Land Value of $510,000 and Improvement Value of $540,000.
| Date | Type | Price | Agent/Agency |
|---|---|---|---|
| 6 Mar 2025 | SOLD | $1,055,000 | |
| 28 Jan 2025 | ENQUIRIES OVER | $1,100,000 | Nigel Solomon of Team Group Realty Limited, Harcourts Wellington City, (Licensed: Reaa 2008) |
| 22 Nov 2002 | SOLD | $285,000 | |
| 27 Jul 1990 | SOLD | $156,000 | |
| 3 Sep 1987 | SOLD | $175,250 |
Lot 1 Deposited Plan 35059
There are no similar properties in the area that are listed for sale or recently sold.