
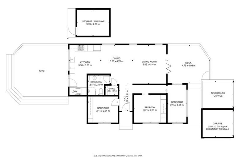
1/15a Box Hill, Khandallah, Wellington, 6035 is a Residential property built in 1978 with 3 bedrooms, 1 bathroom and 1 parking space. The property is estimated to be valued in the range of $700,000 to $750,000.
The property last sold on 28 October 2003 for $232,700. On 1 September 2024, 1/15a Box Hill, Khandallah, Wellington, 6035 had a Rating Valuation with a Capital Value of $710,000, Land Value of $425,000 and Improvement Value of $285,000.
| Date | Type | Price | Agent/Agency |
|---|---|---|---|
| 28 Feb 2023 | ENQUIRIES OVER | $950,000 | Sam Rathod of Lowe & Co, (Licensed: Reaa 2008) |
| 28 Oct 2003 | SOLD | $232,700 | |
| 20 Mar 1998 | SOLD | $150,000 |
Unit A and Accessory Unit 1-3 Deposited Plan 84206
There are no similar properties in the area that are listed for sale or recently sold.