
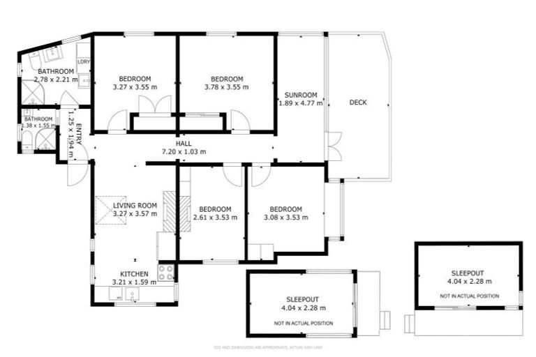
66 Kelburn Parade, Kelburn, Wellington, 6012 is a Residential property built in 1900 with 4 bedrooms, 2 bathrooms and 0 parking spaces. The property is estimated to be valued in the range of $800,000 to $900,000.
The property last sold on 19 June 2024 for $850,000. It was sold by Lowe & Co, (Licensed: Reaa 2008). On 1 September 2024, 66 Kelburn Parade, Kelburn, Wellington, 6012 had a Rating Valuation with a Capital Value of $850,000, Land Value of $750,000 and Improvement Value of $100,000.
| Date | Type | Price | Agent/Agency |
|---|---|---|---|
| 23 Jan 2025 | Rented | $800 | Darryl of Trust Property Management Ltd |
| 19 Jun 2024 | SOLD | $850,000 | |
| 8 Feb 2024 | ENQUIRIES OVER | $875,000 | |
| 4 Jan 2024 | Rented | $1,380 | |
| 13 Jan 2023 | ENQUIRIES OVER | $850,000 | |
| 21 Nov 2022 | Rented | $255 | |
| 5 Feb 2021 | Rented | $1,500 | |
| 30 May 2012 | SOLD | $510,000 | Cheryl Barber of Re/Max Leaders Real Estate - Wellington City |
| 11 Feb 2012 | ENQUIRIES OVER | $497,000 | Cheryl Barber of Re/Max Leaders Real Estate - Wellington City |
| 29 Oct 2011 | TENDER | Price Not Disclosed | Cheryl Barber of Remax Leaders |
| 26 Jul 1991 | SOLD | $160,000 | |
| 3 Apr 1987 | SOLD | $155,000 | |
| 11 Aug 1982 | SOLD | $55,000 |
Lot 5 Deposited Plan 1646
There are no similar properties in the area that are listed for sale or recently sold.