
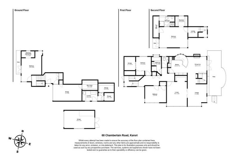
68 Chamberlain Road, Karori, Wellington, 6012 is a Residential property built in 1948 with 4 bedrooms, 2 bathrooms and 2 parking spaces. The property is estimated to be valued in the range of $1,200,000 to $1,300,000.
The property last sold on 13 November 2025 for $1,155,555. It was sold by Lowe & Co, (Licensed: Reaa 2008), and took 17 days to sell. On 1 September 2024, 68 Chamberlain Road, Karori, Wellington, 6012 had a Rating Valuation with a Capital Value of $1,210,000, Land Value of $660,000 and Improvement Value of $550,000.
| Date | Type | Price | Agent/Agency |
|---|---|---|---|
| 13 Nov 2025 | SOLD | $1,155,555 | |
| 28 Oct 2025 | ASKING PRICE | Price Not Disclosed | Marcia Paterson of Lowe & Co, (Licensed: Reaa 2008) |
| 3 May 1988 | SOLD | $140,000 | |
| 13 Jan 1984 | SOLD | $91,500 |
Lot 6 Deposited Plan 13659
There are no similar properties in the area that are listed for sale or recently sold.