
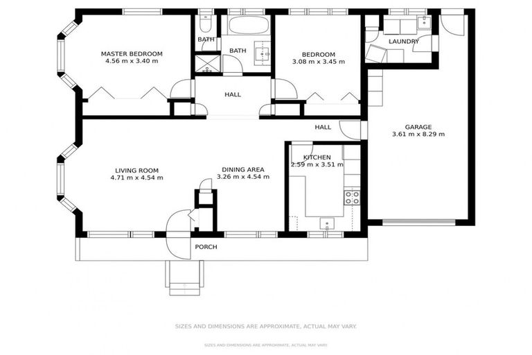
391a Karori Road, Karori, Wellington, 6012 is a Residential property built in 1981 with 3 bedrooms, 1 bathroom and 1 parking space. The property is estimated to be valued in the range of $800,000 to $900,000.
The property last sold on 6 September 2022 for $900,000. On 1 September 2024, 391a Karori Road, Karori, Wellington, 6012 had a Rating Valuation with a Capital Value of $850,000, Land Value of $490,000 and Improvement Value of $360,000.
| Date | Type | Price | Agent/Agency |
|---|---|---|---|
| 1 Nov 2022 | ASKING PRICE | $935,000 | Eileen Gillespie of Harcourts Whitby |
| 6 Sep 2022 | SOLD | $900,000 | |
| 10 Mar 2022 | BY NEGOTIATION | Price Not Disclosed | Eileen Gillespie of Professionals Whitby (Doublewinkel Real Estate Ltd Mreinz) |
| 9 Oct 2009 | SOLD | $430,000 | |
| 18 Jul 1999 | SOLD | $239,000 | |
| 7 Feb 1983 | SOLD | $110,000 |
Lot 7 Deposited Plan 7233
There are no similar properties in the area that are listed for sale or recently sold.