
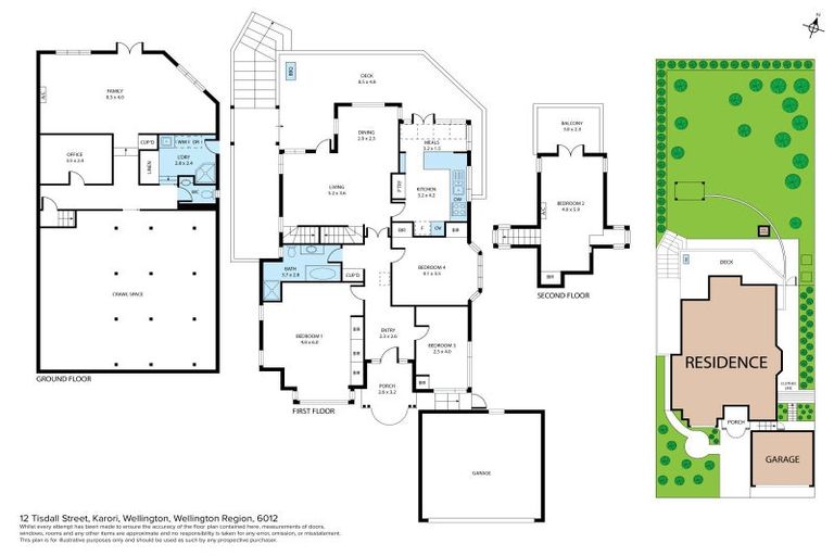
12 Tisdall Street, Karori, Wellington, 6012 is a Residential property built in 1926 with 5 bedrooms, 2 bathrooms and 2 parking spaces. The property is estimated to be valued in the range of $1,300,000 to $1,400,000.
The property last sold on 19 September 2025 for $1,170,000. It was sold by Lowe & Co, (Licensed: Reaa 2008), and took 19 days to sell. On 1 September 2024, 12 Tisdall Street, Karori, Wellington, 6012 had a Rating Valuation with a Capital Value of $1,420,000, Land Value of $710,000 and Improvement Value of $710,000.
| Date | Type | Price | Agent/Agency |
|---|---|---|---|
| 19 Sep 2025 | SOLD | $1,170,000 | |
| 1 Sep 2025 | BY NEGOTIATION | Price Not Disclosed | Sara Samuel of Lowe & Co, (Licensed: Reaa 2008) |
| 29 Apr 2019 | SOLD | $1,050,000 | Chris Day of Redcoats Ltd Professionals, Wellington Licensed: Reaa 2008 |
| 3 Apr 2019 | ASKING PRICE | Price Not Disclosed | Chris Day of Redcoats Ltd Professionals, Wellington Licensed: Reaa 2008 |
| 5 Mar 1983 | SOLD | $79,500 |
Lot 12 Block E Deposited Plan 1543
There are no similar properties in the area that are listed for sale or recently sold.