
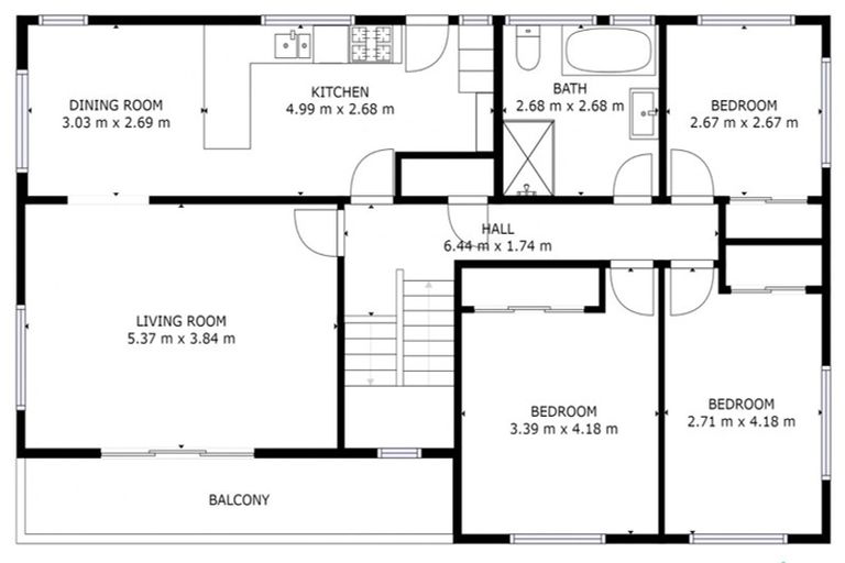
62 Cortina Avenue, Johnsonville, Wellington, 6037 is a Residential property built in 1984 with 4 bedrooms, 2 bathrooms and 1 parking space. The property is estimated to be valued in the range of $800,000 to $900,000.
It is unknown when the property was last sold or how much it was sold for. On 1 September 2024, 62 Cortina Avenue, Johnsonville, Wellington, 6037 had a Rating Valuation with a Capital Value of $830,000, Land Value of $430,000 and Improvement Value of $400,000.
| Date | Type | Price | Agent/Agency |
|---|---|---|---|
| 7 Nov 2025 | Rented | $795 | Myrent.Co.Nz of Myrent.Co.NZ Ltd |
| 11 Jul 2024 | Rented | $875 | Myrent.Co.Nz of Myrent.Co.NZ Ltd |
| 2 Apr 2022 | Rented | $850 | Jade Zhou of Fixit Homes Property Management |
| 8 Mar 2022 | ENQUIRIES OVER | $1,100,000 | Mark Phillips of Professionals Lower Hutt (Redcoats Ltd Mreinz), (Licensed: Reaa 2008) |
| 23 Nov 2011 | ENQUIRIES OVER | $400,000 | Anne Ten Broeke-Smith of Tommy's Real Estate |
| 10 Oct 2005 | SOLD | $330,000 | |
| 24 May 2001 | SOLD | $203,000 | |
| 15 Dec 1997 | SOLD | $200,000 | |
| 30 Jul 1989 | SOLD | $164,000 | |
| 3 Jul 1984 | SOLD | $84,172 |
Flat 2 Deposited Plan 56679
There are no similar properties in the area that are listed for sale or recently sold.