
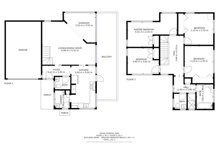
44 Frankmoore Avenue, Johnsonville, Wellington, 6037 is a Residential property built in 1977 with 4 bedrooms, 1 bathroom and 1 parking space. The property is estimated to be valued in the range of $900,000 to $1,000,000.
The property last sold on 27 November 2019 for $806,000. It was sold by Ray White Kemeys Brothers, and took 20 days to sell. On 1 September 2024, 44 Frankmoore Avenue, Johnsonville, Wellington, 6037 had a Rating Valuation with a Capital Value of $980,000, Land Value of $560,000 and Improvement Value of $420,000.
| Date | Type | Price | Agent/Agency |
|---|---|---|---|
| 1 Nov 2024 | Rented | $800 | Jade of Trust Property Management Ltd |
| 11 Mar 2020 | Rented | $720 | Adam McCallum of Trust Property Management Ltd |
| 27 Nov 2019 | SOLD | $806,000 | |
| 8 Nov 2019 | ENQUIRIES OVER | $810,000 | Annette Sliper of Ray White Kemeys Brothers |
| 28 May 1988 | SOLD | $212,000 |
Lot 5 Deposited Plan 41002
There are no similar properties in the area that are listed for sale or recently sold.