
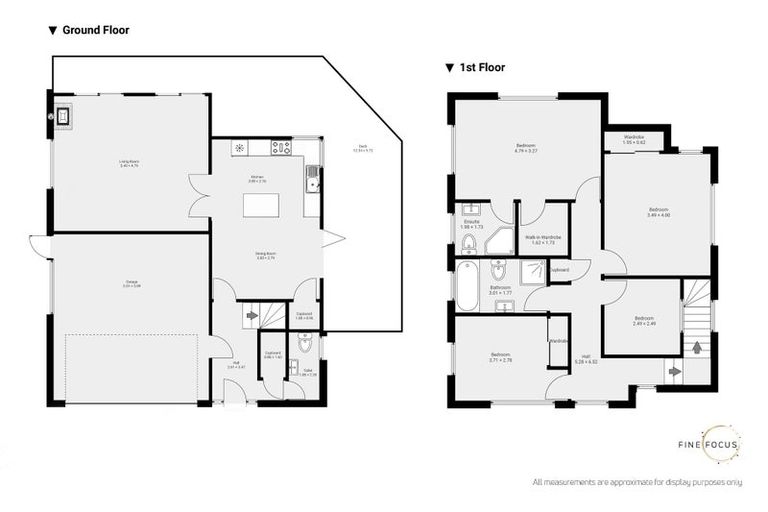
26a Bathgate Street, Johnsonville, Wellington, 6037 is a Residential property built in 2003 with 4 bedrooms, 2 bathrooms and 2 parking spaces. The property is estimated to be valued in the range of $800,000 to $900,000.
The property last sold on 6 October 2024 for $885,000. It was sold by Harcourts Johnsonville, (Licensed: Reaa 2008), and took 25 days to sell. On 1 September 2024, 26a Bathgate Street, Johnsonville, Wellington, 6037 had a Rating Valuation with a Capital Value of $920,000, Land Value of $470,000 and Improvement Value of $450,000.
| Date | Type | Price | Agent/Agency |
|---|---|---|---|
| 6 Oct 2024 | SOLD | $885,000 | |
| 12 Sep 2024 | ASKING PRICE | $895,000 | Steve Welsby of Harcourts Johnsonville, (Licensed: Reaa 2008) |
| 19 Nov 2021 | ENQUIRIES OVER | $1,195,000 | Warrick McCluskey of Tommy's Real Estate Limited, (Licensed: Reaa 2008) |
| 25 Sep 2006 | SOLD | $442,000 | |
| 19 Aug 2002 | SOLD | $297,000 | |
| 18 Jun 1999 | SOLD | $120,000 |
Lot 1 Deposited Plan 312221
There are no similar properties in the area that are listed for sale or recently sold.