
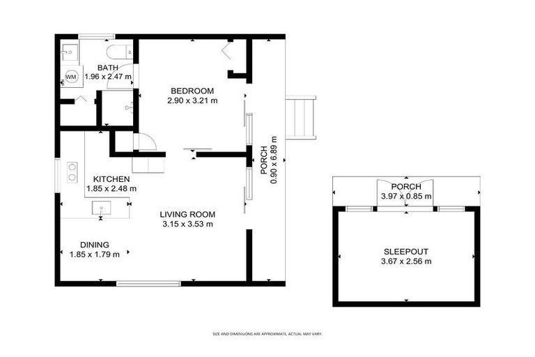
32a Derwent Street, Island Bay, Wellington, 6023 is a Residential property built in 1900 with 1 bedroom, 1 bathroom and 1 parking space. The property is estimated to be valued in the range of $600,000 to $650,000.
The property last sold on 12 March 2025 for $568,000. It was sold by Harcourts Wellington City, and took 18 days to sell. On 1 September 2024, 32a Derwent Street, Island Bay, Wellington, 6023 had a Rating Valuation with a Capital Value of $660,000, Land Value of $570,000 and Improvement Value of $90,000.
| Date | Type | Price | Agent/Agency |
|---|---|---|---|
| 22 May 2025 | Rented | $550 | Tania Du Toit of Managemyproperty |
| 12 Mar 2025 | SOLD | $568,000 | |
| 23 Feb 2025 | ASKING PRICE | Price Not Disclosed | Vinay Kumar of Harcourts Wellington City |
| 17 Mar 2023 | SOLD | $580,000 | |
| 24 Feb 2023 | AUCTION | Price Not Disclosed | Jane Park of Team Group Realty Limited, Harcourts Wellington City, (Licensed: Reaa 2008) |
| 17 Dec 2020 | SOLD | $680,000 |
Lot 2 Deposited Plan 553993
There are no similar properties in the area that are listed for sale or recently sold.